生产破碎机的厂家提供时产300吨石灰岩生产线设备选型技术方案
        导读:本文是上海恒源冶金设备有限公司向客户免费提供的时产300吨石灰岩破碎筛分生产线设备配置及破碎筛分设备的选型技术方案,建议购买设备的客户可以根据自己物料的硬度和产量,参考这个方案后在这个基础上稍作调整,以取得石料生产线的高效、节能和效率的最大化,希望对客户有所帮助。
	 
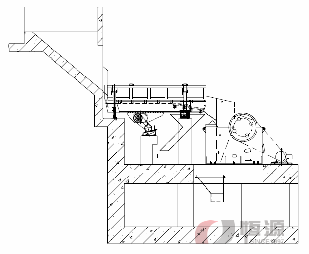
先来介绍一下本条石灰岩生产线工艺流程,流程图如下:
	 
再来介绍一下石灰岩破碎生产线的工艺流程设计方案:
1、头破机组:
采用棒条喂料机ZSW590*110,为生产线提供均匀喂料。棒条喂料机的筛分功能,能够确保将原料中的土质杂质及碎料分离出来,然后通过皮带输送机输送后堆料处理,从而确保原料的品质,并达到原料最小损失量。
颚式破碎机采用PE870*1060型号,满足最大进料粒度670mm的破碎要求。经过棒条喂料机筛分的大料,进入颚式破碎机进行破碎作业。
	 
棒条喂料机前方设计使用大型料仓,满足生产线持续大流量喂料需求。装载车可以直接向大型料斗卸料,也可以由装载机装载供料。
2、二破机组:
经过头破系统的处理,石料粒度降低到250mm以内,80%以上降低到200mm以内。然后,经由皮带输送机,输送到二破机组或者中间料仓。
中间料仓仅作为参考选型,可以不使用。本方案流程图中未采用中间料仓。
中间料仓具有一定储量的缓冲能力,当头破系统喂料量不充足的情况下,能够满足二破系统数小时的供料量,从而规避二破及后续系统的空载现象,进而实现生产效益的最大化。
中间料仓的缓冲料,通过料仓底部的悬挂喂料机GZG-1007,均匀输送到两台并联的大型反击破PF1315,完成第二级破碎作业。反击式破碎机PF1315具有强大的破碎能力,能够将石料粒度破碎到厘米级规格,并具备一定的粒型度。
	 
两台并联的大型反击破,在设备下方共用一条倒料皮带输送机,将两台反击破的出料并联输送,搭接到后续的主皮带机,输送到下一级振动筛进行筛分。
3、筛分机组:
经过两级破碎之后,石料的粒度基本降低到厘米级别。我司生产线采用两台并联的大型圆振动筛4YK2460,将厘米级混合料进行一次筛分处理。
	 
4、超高细破碎机组
采用超高细破碎机PX1414,实现高效率的细化破碎任务。高效细碎机采用了先进的分体式锤破结构,以及高频反击强制破碎技术,能够获得最高效率的细碎效果。
因此,细碎机组不仅可以将需求量很少的5~10mm中间料完全细化为5mm以下的机制砂,同时将大于30mm的返料完全消化。
高效细碎机PX1414采用了分体式高铬合金材质锤头,具备超强耐磨特性,在石灰岩破碎生产线应用中性能突出,获得了用户的高度评价,在贵州地区由大量应用案例,欢迎参观考察。
	 
 
上海恒源企业简介
上海恒源是集冶金装备、矿山设备、机械铸造、机电工程的设计、制造、工程安装及国际贸易为一体的大型股份制企业集团,是一家老牌专业生产破碎机的厂家,集团公司的前身——上海恒源机械厂于1987就开始了矿山设备、重型装备的设计与制造,是国内规模比较大的矿山设备制造企业之一!
集团下属冶金设备公司制造的“山碎”牌系列矿山设备、选矿设备、冶金设备等处于国际同类产品先进水平,在国内外市场上具体极高的知名度,产品出口到60多个国家和地区!集团下属铸造公司、机电工程公司,铸造高铬合金、精密合金耐磨件、设计制造机电一体化控制设备,为国际知名矿山设备及国内顶尖装备制造商提供产品配套服务。 集团下属外贸公司负责集团公司产品的国际市场开拓、开展经济技术合作、提供砂石生产咨询、国外安装工程承包等业务!
目前,公司拥有各类技术和管理人员300余人,厂房占地面积六万多平米,各种大型加工设备100多台套,通过了ISO、CE等国际质量体系认证,获得了“中国矿山机械行业50强企业”,“上海市科技创新企业”,“AAA质量诚信单位”等一系列荣誉!
公司不仅有性能可靠的产品和经验丰富的售后服务团队,相信您需要的不仅仅是我们的产品,更是全方面的售后服务。恒源人重视的是精益求精的产品技术和质量,追求的是为您提供称心、省心、放心、安心的无忧服务。
我们将秉持“诚信、务实、创新、发展”的理念,与国内外用户一起合作双赢,共同发展!
                      
先来介绍一下本条石灰岩生产线工艺流程,流程图如下:

再来介绍一下石灰岩破碎生产线的工艺流程设计方案:
1、头破机组:
采用棒条喂料机ZSW590*110,为生产线提供均匀喂料。棒条喂料机的筛分功能,能够确保将原料中的土质杂质及碎料分离出来,然后通过皮带输送机输送后堆料处理,从而确保原料的品质,并达到原料最小损失量。
颚式破碎机采用PE870*1060型号,满足最大进料粒度670mm的破碎要求。经过棒条喂料机筛分的大料,进入颚式破碎机进行破碎作业。

棒条喂料机前方设计使用大型料仓,满足生产线持续大流量喂料需求。装载车可以直接向大型料斗卸料,也可以由装载机装载供料。
2、二破机组:
经过头破系统的处理,石料粒度降低到250mm以内,80%以上降低到200mm以内。然后,经由皮带输送机,输送到二破机组或者中间料仓。
中间料仓仅作为参考选型,可以不使用。本方案流程图中未采用中间料仓。
中间料仓具有一定储量的缓冲能力,当头破系统喂料量不充足的情况下,能够满足二破系统数小时的供料量,从而规避二破及后续系统的空载现象,进而实现生产效益的最大化。
中间料仓的缓冲料,通过料仓底部的悬挂喂料机GZG-1007,均匀输送到两台并联的大型反击破PF1315,完成第二级破碎作业。反击式破碎机PF1315具有强大的破碎能力,能够将石料粒度破碎到厘米级规格,并具备一定的粒型度。

两台并联的大型反击破,在设备下方共用一条倒料皮带输送机,将两台反击破的出料并联输送,搭接到后续的主皮带机,输送到下一级振动筛进行筛分。
3、筛分机组:
经过两级破碎之后,石料的粒度基本降低到厘米级别。我司生产线采用两台并联的大型圆振动筛4YK2460,将厘米级混合料进行一次筛分处理。

- 振动筛4YK2460的四种出料,0~5mm、5~10mm、10~20mm、20~30mm分别堆料处理。
- 振动筛形成的返料进入高校细碎机PX-1414进行制砂处理;
- 5~30mm的成品料,既可以作为成品堆料处理,也可以通过粉料斗出口的转换,与大于30mm的返料一切输送到细碎机PX1414进行制砂;
- 因此,通过振动筛出料斗的双出口设计,可以调节不同成品料的比例;
- 该方案可以确保0~5mm机制砂产量达到每小时150吨左右。
4、超高细破碎机组
采用超高细破碎机PX1414,实现高效率的细化破碎任务。高效细碎机采用了先进的分体式锤破结构,以及高频反击强制破碎技术,能够获得最高效率的细碎效果。
因此,细碎机组不仅可以将需求量很少的5~10mm中间料完全细化为5mm以下的机制砂,同时将大于30mm的返料完全消化。
高效细碎机PX1414采用了分体式高铬合金材质锤头,具备超强耐磨特性,在石灰岩破碎生产线应用中性能突出,获得了用户的高度评价,在贵州地区由大量应用案例,欢迎参观考察。

上海恒源企业简介
上海恒源是集冶金装备、矿山设备、机械铸造、机电工程的设计、制造、工程安装及国际贸易为一体的大型股份制企业集团,是一家老牌专业生产破碎机的厂家,集团公司的前身——上海恒源机械厂于1987就开始了矿山设备、重型装备的设计与制造,是国内规模比较大的矿山设备制造企业之一!
集团下属冶金设备公司制造的“山碎”牌系列矿山设备、选矿设备、冶金设备等处于国际同类产品先进水平,在国内外市场上具体极高的知名度,产品出口到60多个国家和地区!集团下属铸造公司、机电工程公司,铸造高铬合金、精密合金耐磨件、设计制造机电一体化控制设备,为国际知名矿山设备及国内顶尖装备制造商提供产品配套服务。 集团下属外贸公司负责集团公司产品的国际市场开拓、开展经济技术合作、提供砂石生产咨询、国外安装工程承包等业务!
目前,公司拥有各类技术和管理人员300余人,厂房占地面积六万多平米,各种大型加工设备100多台套,通过了ISO、CE等国际质量体系认证,获得了“中国矿山机械行业50强企业”,“上海市科技创新企业”,“AAA质量诚信单位”等一系列荣誉!
公司不仅有性能可靠的产品和经验丰富的售后服务团队,相信您需要的不仅仅是我们的产品,更是全方面的售后服务。恒源人重视的是精益求精的产品技术和质量,追求的是为您提供称心、省心、放心、安心的无忧服务。
我们将秉持“诚信、务实、创新、发展”的理念,与国内外用户一起合作双赢,共同发展!
返回首页
相关文章
- 5R磨粉机设备发货实况-恒源·中国- 2019-05-12
- 矿山开采之破碎机耐磨件应该如何选择- 2019-05-10
- 花岗岩破碎需要哪些设备?- 2023-07-07
- 破碎机配件的维护保养之板锤的操作- 2019-09-25
- 细碎机、滚筒筛发货回顾,破碎机厂家直销质量- 2019-07-24
- 颚式破碎机配件选购须知- 2024-09-23
- 【破碎机设备】简单介绍一下反击式破碎机的几个特点,请留意!- 2019-09-19
- 破碎机操作规程系列之冲击式破碎机操作规程- 2019-05-10
- 时产600吨铁矿石生产线试机投产- 2020-04-07
- 组建小型碎石生产线的破碎机设备选型方案设计- 2020-01-22
- 如今环保这么严,破碎车间粉尘多收尘效果不好怎么办- 2019-09-04
- 破碎机设备的分类与应用- 2019-05-10
- 【破碎机】不停机情况下进行移动式破碎机故障监测- 2019-09-01
- 【行业观察】生态文明理念下维持矿山生态稳定靠什么——对话绿色矿山推进委员会会长史- 2019-09-16
- 细沙回收脱水筛现场视频- 2020-04-22
- 锤式破碎机产生粉尘的原因是什么- 2020-08-04
- 一台每个小时处理量在200吨左右的液压式圆锥破碎机大概需要多少钱?- 2019-08-25
- 技术篇|多缸圆锥破碎机振动噪声过大及回油温度高怎么回事!- 2019-11-16
- 单缸圆锥破碎机出厂试机视频- 2020-04-07
- 【破碎机维修】如果你的破碎机出现严峻磨损该怎么办,莫急,看!- 2019-08-08






